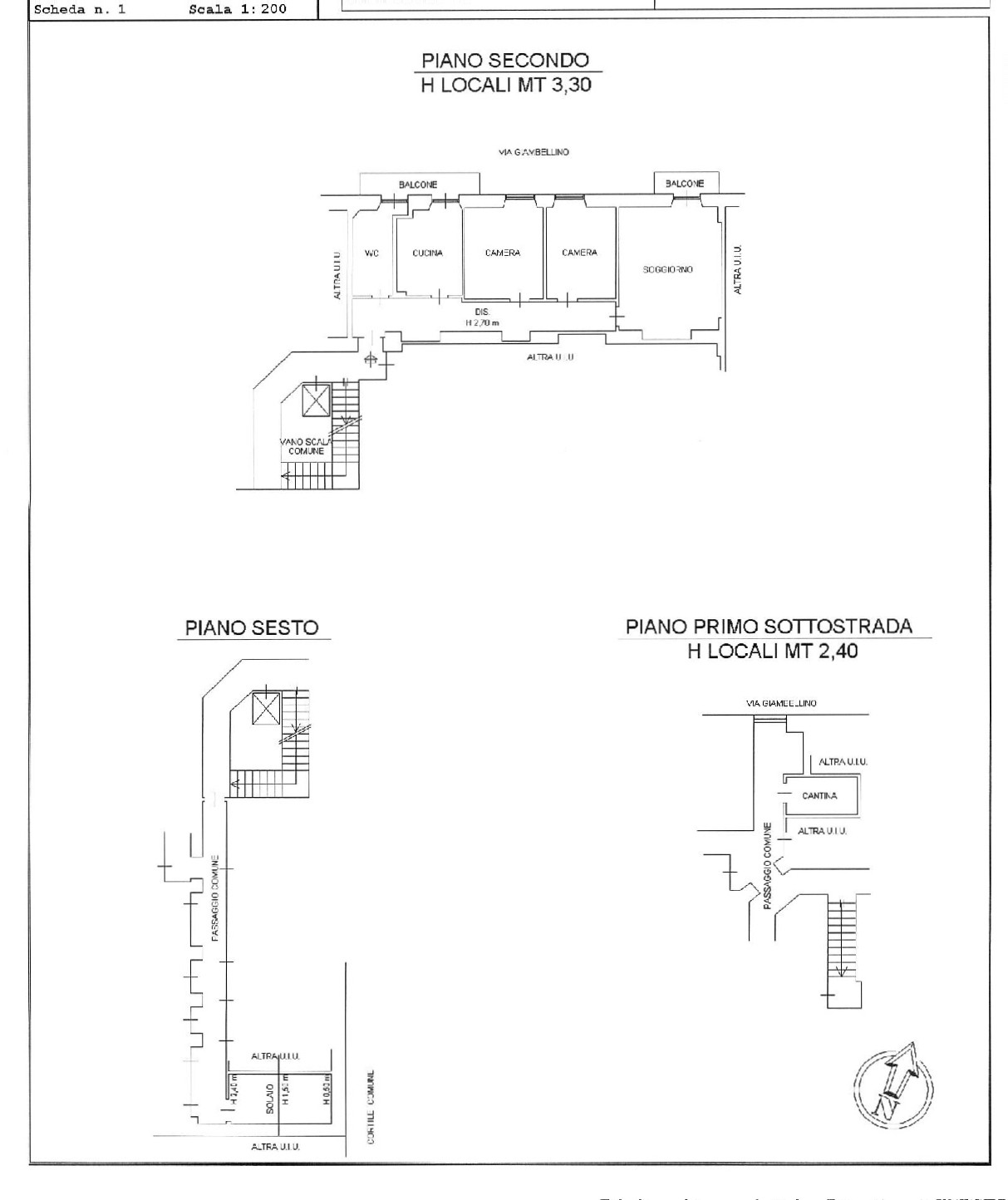
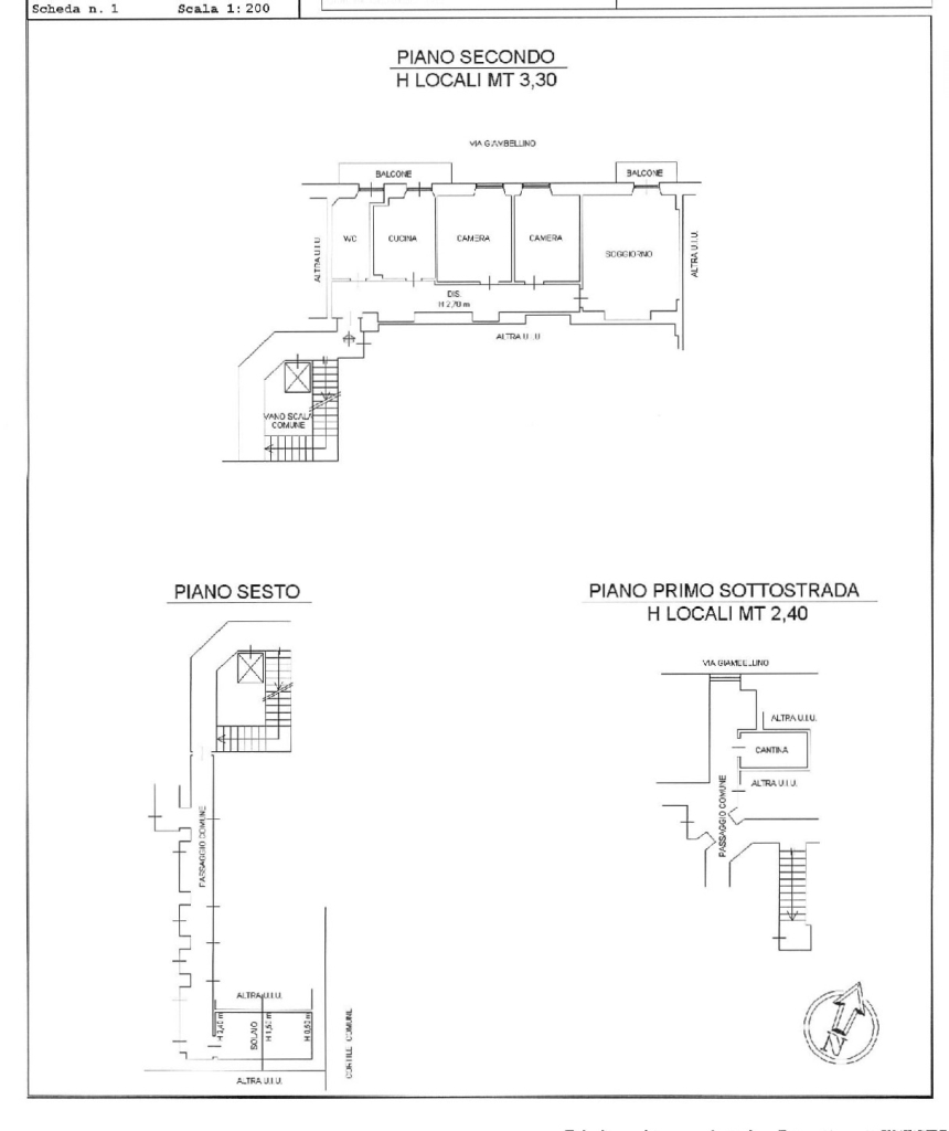
Ampio trilocale di 96 m² situato al secondo piano di un elegante stabile signorile con portineria. Composto da un ingresso accogliente, un luminoso soggiorno e due camere da letto spaziose, questo appartamento offre la possibilità di essere personalizzato secondo il proprio gusto. La cucina funzionale e il bagno ben distribuito completano gli spazi interni, mentre i due balconi offrono luminosità. Le parti comuni dell'edificio sono state completamente ristrutturate, creando un ambiente curato e accogliente. La zona è ricca di negozi e servizi, rendendo la vita quotidiana estremamente pratica. Inoltre, la vicinanza alla fermata della metropolitana M4 facilita gli spostamenti in città, rendendo questa proprietà ideale per chi cerca praticità e vivibilità. Non perdere l'opportunità di investire in un appartamento da ristrutturare a proprio piacimento, con la possibilità di creare un ambiente unico e personale. Contattaci per maggiori informazioni.







